Haydnstrasse, Berlin-Steglitz

Wettbewerb 2006
Wohnungsbau mit 28 Wohneinheiten
Auslober: Gemeinnützige Baugenossenschaft Steglitz eG
Wohnungsbau mit 28 Wohneinheiten
Auslober: Gemeinnützige Baugenossenschaft Steglitz eG
Rathaus Britz-Chorin / Brandenburg

Wettbewerb 2003 · 2. Preis
Neubau eines Rathauses
Britz-Chorin / Brandenburg
Auslober: Gemeinde Britz-Chorin
Neubau eines Rathauses
Britz-Chorin / Brandenburg
Auslober: Gemeinde Britz-Chorin
Königstrasse 37, Berlin-Tempelhof
Wohnhaus mit 15 Eigentumswohnungen
Bauherr: Berliner Baugenossenschaft, bbg
Fertigstellung 2002
Bauherr: Berliner Baugenossenschaft, bbg
Fertigstellung 2002
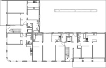
Stadtteilzentrum Hellersdorf - Block 3.1, Berlin-Hellersdorf
Janusc-Korczak-Strasse 19 - 21
Wohn- und Geschäftshaus mit 96 Wohneinheiten
Bauherr: MEGA AG, Fertigstellung 1997
Wohn- und Geschäftshaus mit 96 Wohneinheiten
Bauherr: MEGA AG, Fertigstellung 1997
Techowpromenade, Berlin-Reinickendorf
Städtebaulicher Realisierungswettbewerb 1996 · 1. Preis
Wohnungsbau mit 197 Wohneinheiten
Auslober: GEWIWO Berlin
Wohnungsbau mit 197 Wohneinheiten
Auslober: GEWIWO Berlin
Alte Waage Leipzig, Am Markt 4 / Katharinenstr.3, Leipzig



Geschäftshaus, 2.840 qm Gewerbe, 360 qm Wohnfläche
Bauherr: Alte Leipziger Lebensversicherungsgesellschaft a.G.
Fertigstellung 1996
Bauherr: Alte Leipziger Lebensversicherungsgesellschaft a.G.
Fertigstellung 1996
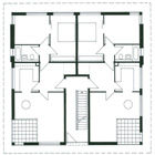
Rudower Felder - Wohnungsbau, Berlin-Neukölln
Jeanette-Wolff-Strasse 8 + 10, 16 + 18
4 Stadtvillen Rudower Felder mit 44 Wohneinheiten
Bauherr: GEHAG, Fertigstellung 1996
4 Stadtvillen Rudower Felder mit 44 Wohneinheiten
Bauherr: GEHAG, Fertigstellung 1996
Verwaltungsgebäude Otto-Suhr-Allee 30, Berlin-Charlottenburg
Wettbewerb 1992 · 1. Preis
Bauherr: Berliner Wohn- und Geschäftshaus GmbH, BEWOGE
BGF 5.030 qm, Fertigstellung 1994
Bauherr: Berliner Wohn- und Geschäftshaus GmbH, BEWOGE
BGF 5.030 qm, Fertigstellung 1994
Askanischer Platz 1, Berlin-Kreuzberg

Wettbewerb 1993 · 3. Preis
Wohn- und Geschäftshaus
Auslober: Haberent Grundstücks GmbH
Wohn- und Geschäftshaus
Auslober: Haberent Grundstücks GmbH
Winkelwiesen, Berlin-Rosenthal
Wettbewerb 1991 · 1. Preis
Wohnungsbau mit 156 Wohneinheiten
Gewerbe und Kindertagesstätte
Bauherr: Immobilienfond Winkelwiesen GbR
Fertigstellung 1995
Wohnungsbau mit 156 Wohneinheiten
Gewerbe und Kindertagesstätte
Bauherr: Immobilienfond Winkelwiesen GbR
Fertigstellung 1995
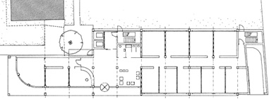
Wohn- und Geschäftshaus Weserstrasse 1, Berlin-Neukölln
Wettbwerb 1990 · 1. Preis
17 Seniorenwohnungen, Bankfiliale im EG
Bauherr: Stadt + Land Wohnbauten GmbH
Fertigstellung 1992
17 Seniorenwohnungen, Bankfiliale im EG
Bauherr: Stadt + Land Wohnbauten GmbH
Fertigstellung 1992











